Offered unfurnished and available late November, being situated on the popular Airfield development and within walking distance to local shops and amenities is this well presented one bedroom starter home. Accommodation includes a lounge, refitted kitchen with appliances, bathroom, an enclosed front and rear garden, double glazing and allocated driveway parking for two vehicles.

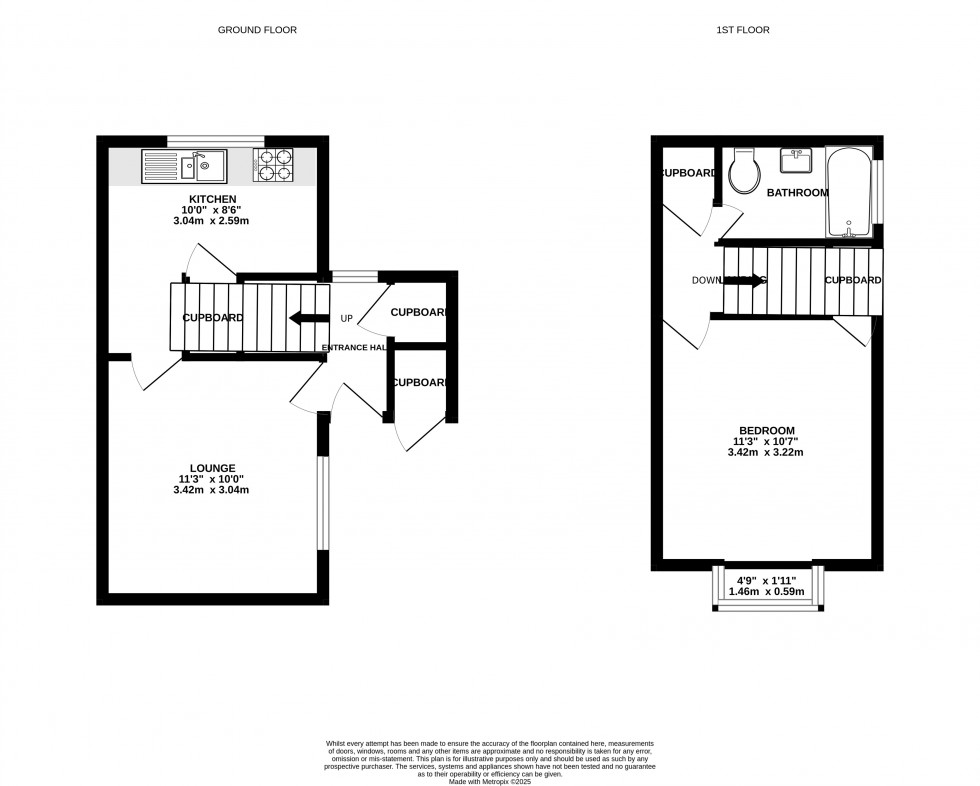
Ground Floor

Entrance Hall

Stairs to first floor landing, built in storage cupboard, double glazed rear aspect window.

Lounge

11' 3" x 10' (3.43m x 3.05m) Television point, double glazed side aspect window.

Kitchen

10' 7" x 8' 6" (3.23m x 2.59m) A refitted range of cupboards and work surface areas, built in understair cupboard, stainless steel sink unit, cooker point, space for washing machine, double glazed rear aspect window.

First Floor

Landing

Access to loft space, built airing cupboard.

Bedroom

11' 3" x 10' 7" (3.43m x 3.23m) Built in wardrobe, double glazed box bay front aspect window.

Bathroom

Three piece suite comprising a panel enclosed bath with shower attachment, pedestal wash hand basin, low level wc, double glazed rear aspect window.

Outside

Front Garden

A low maintenance enclosed garden with hedge border and driveway parking for two vehicles.

Rear Garden

A good size rear garden comprising a patio as well as a low maintenance area with the remainder laid to lawn and enclosed by fencing.

  • One Bedroom Starter Home
  • Lounge
  • Refitted Kitchen with Appliances and Bathroom
  • Front & Rear Garden
  • Driveway For Two Cars
  • Double Glazing
  • Close to Tesco Local plus other Amenities and Transport Links
  • Offered Unfurnished
  • Available Late November
Floorplan for Woodley, Reading, Berkshire
EPC Graph for Woodley, Reading, Berkshire


Register today for property updates
Register

Instant online valuation

60 - second instant online valuation
Get a valuation