Arins Property Services - Available now is this well presented unfurnished three bedroom semi detached home. The property is situated within a private road, and has good access to various local schools, is within walking distance to a bus route and is close to Reading West train station. Further accommodation includes two reception rooms, refitted kitchen, first floor family bathroom with a separate toilet . Other features include double glazed windows, gas central heating, a large rear garden, driveway parking for multiple cars, and large outside storage.

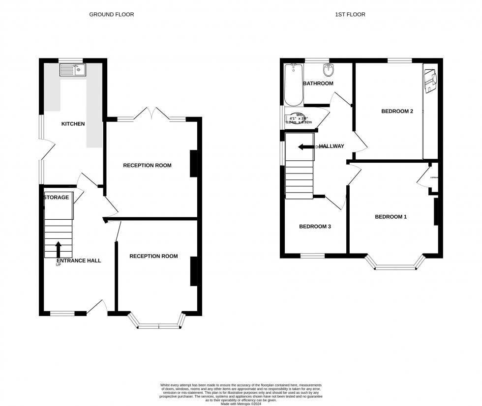
Ground Floor

Entrance Hall

Stairs to first floor, under stairs storage, access to both reception rooms and kitchen.

First Reception Room

Front aspect double glazed bay window, radiator, fire place.

Second Reception Room

Rear aspect double glazed French doors opening onto rear garden, radiator, fire place.

Kitchen

Rear aspect double glazed window, eye and base level units, fitted oven and hob, washing machine and fridge/freezer, side access door.

First Floor

Landing

Access to all first floor rooms

Bedroom One

Front aspect double glazed bay window, radiator, storage cupboard.

Bedroom Two

Rear aspect double glazed window, radiator, fitted wardrobes.

Bedroom Three

Front aspect double glazed window, radiator.

Bathroom

Rear aspect double glazed window, bath with shower and sink.

Outside

Driveway

Brick paved driveway providing off road parking for multiple vehicles.

Rear Garden

Large, fence enclosed rear garden.

  • Three Bedroom
  • Private Road
  • Private Rear Garden
  • Driveway Parking & Garage
  • Two Reception Rooms
  • Unfurnished
  • Ample Driveway Parking
  • Available Now
Floorplan for Kenilworth Avenue, Reading, Berkshire
EPC Graph for Kenilworth Avenue, Reading, Berkshire
Similar Properties


Register today for property updates
Register

Instant online valuation

60 - second instant online valuation
Get a valuation