Situated on a popular quiet cul-de-sac is this extended four bedroom semi detached family home, the property is a reasonable distance to various local primary and secondary schools, while having good access to Tilehurst train station, and is close to various local amenities. Further accommodation includes a 20ft lounge, 26ft kitchen/ dining room, ensuite shower room to master bedroom and a separate family bathroom. Other features include a large garage, driveway parking, double glazed windows, gas central heating and an enclosed rear garden.

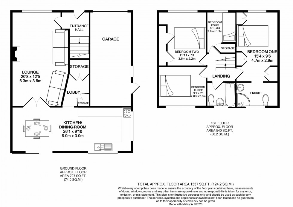
Ground Floor

Entrance Hall

Stairs leading to first floor, single radiator, door to lounge.

Lounge

20' 8" x 12' 5" (6.30m x 3.78m) Front aspect double glazed window, two single radiators, double doors leading to kitchen/ dining room, feature fireplace with heath and mantle, TV point, telephone point.

Kitchen/ Dining Room

26' 1" x 9' 10" (7.95m x 3.00m) Rear and side aspect double glazed window, a range of eye and base level units, one and half bowl with drainer, fitted gas hob with separate electric oven plus extractor fan overhead, plumbing for washing machine, separate space for dishwasher, space for fridge/ freezer, double radiator, loft hatch, patio door to rear garden, access to lobby.

Lobby

Understairs cupboard, door to garage, separate storage cupboard.

First Floor

Landing

Loft hatch and access to all first floor rooms.

Bedroom One

15' 4" x 9' 6" (4.67m x 2.90m) Front aspect double glazed window, double radiator, various fitted double wardrobes with eye level storage and fitted bedside cabinets, archway to ensuite shower room.

Ensuite Shower Room

Rear aspect double glazed window, fitted shower cubicle, low level WC, pedestal wash hand basin, downlighters, single radiator, extractor fan.

Bedroom Two

11' 11" x 7' 4" (3.63m x 2.24m) Front aspect double glazed window, various fitted double wardrobes with eye level units, fitted dressing table, single radiator.

Bedroom Three

9' 1" x 8' 5" (2.77m x 2.57m) Rear aspect double glazed window, single radiator.

Bedroom Four

9' 1" x 6' 4" (2.77m x 1.93m) Front aspect double glazed window, single radiator, over stairs cupboard.

Bathroom

Rear aspect double glazed window, panel enclosed bath with shower attachment, low level WC, wash hand basin housed by vanity unit, extractor fan.

Outside

Front Garden

The front garden is enclosed by wood fencing, driveway parking for a number of vehicles and a separate lawned area, access to garage and side gate leading to rear garden and garage.

Large Garage

Up and over garage door, light and power, wall mounted boiler.

Rear Garden

The rear garden is enclosed by wood fencing and mature hedges, paved patio area with access to a separate lawned area.

  • Four Bedrooms
  • Kitchen / Dining Room
  • Large Garage
  • Large Lounge
  • Driveway Parking
  • Double Glazed Windows
  • Gas Central Heating
  • Ensuite Shower Room
Floorplan for Tilehurst, Reading, Berkshire
Similar Properties


Register today for property updates
Register

Instant online valuation

60 - second instant online valuation
Get a valuation