Offered unfurnished and available late April is this well presented and improved 3 bedroom semi detached house located in a quiet cul-de-sac. The house offers great access to local independent and state schools including Crossfield, Leighton Park, The Abbey, Geoffrey Field and the John Madejski Academy in addition to close proximity to cafes, pharmacies, takeaways, a Tesco local, Morrisons and Lidl supermarkets plus nearby specialist grocery stores and petrol station with easy access to Green Park and J11 of the M4 plus local bus routes.

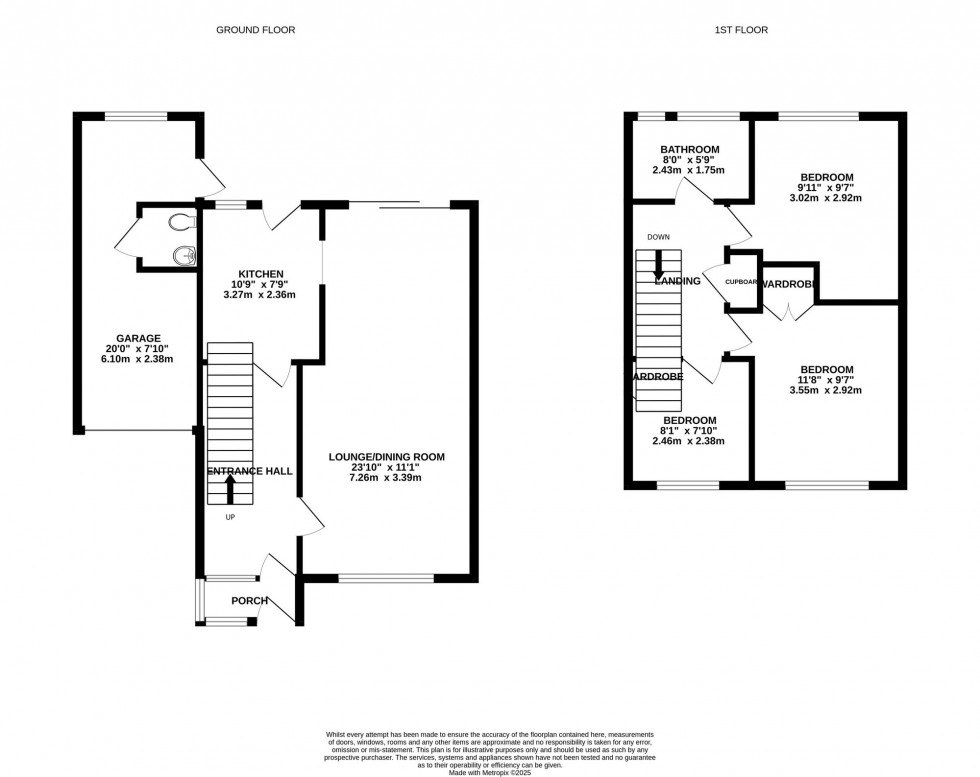
Accommodation comprises of a useful porch, spacious entrance hall, generous open plan living / dining room with patio doors, refitted kitchen with appliances, refitted bathroom with bath and separate shower cubicle plus three bedrooms including some bespoke fitted wardrobes to bedroom one and built in wardrobe to bedroom three. To the exterior of the property is driveway parking to the front with access to the garage which has an additional toilet and to the rear is a low maintenance self contained garden. The property further benefits from upgraded low maintenance hard flooring throughout. Please note photo's taken before current tenancy. 

  • Well Presented 3 Bedroom Semi Detached House
  • Porch and Entrance Hall
  • Living / Dining Room
  • Refitted Kitchen with Appliances
  • Refitted Bathroom with Bath and Separate Shower Cubicle
  • Self Contained Rear Garden and Driveway
  • Close to Local Amenities, Specialist Grocery Stores, Transport Links and Schools
  • Upgrades Include Hard Flooring throughout plus some Bespoke Fitted Wardrobes
  • Driveway plus Garage with Additional Toilet
  • Offered Unfurnished and Available 28th April
Floorplan for Hollydale Close, Reading, RG2
EPC Graph for Hollydale Close, Reading, RG2


Register today for property updates
Register

Instant online valuation

60 - second instant online valuation
Get a valuation